一、 产品介绍
1.1 功能概述
智能门锁由锁体和门禁控制单元组成,主要用于人员的出入管理,可有效管理门的开启与关闭, 保证授权人员自由出入,限制未授权人员进入。可实现门、锁实时状态检测,支持自动上锁功能和现场出门按钮功能,与网关或远程系统配合实现授权密码开锁、远程遥控开锁、开门记录保存等功能。锁体支持防盗门安装、支持表面安装。门禁控制单元可以接入智能门锁锁体,同时具有无线LoRa 通信接口和 LAN 网口,满足了系统组网的要求。
1.2 性能特点
⚫ 门禁控制单元采用继电器型输出方式(常闭,开锁时打开),可直接控制其它设备;
⚫ 无线支持《Q/GDW 12020 输变电设备物联网微功率无线网通信协议》;
1.3 产品外观及尺寸
图 1 智能门锁外观
锁体外形尺寸如下:
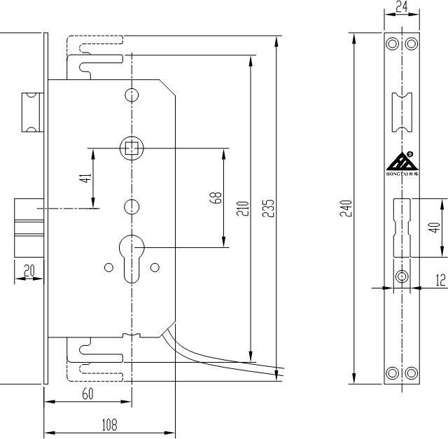
面板尺寸图
锁体尺寸图
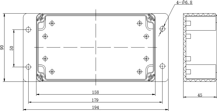
门禁控制单元外形尺寸如下:
外形、安装尺寸图
图 2 智能门锁外形尺寸图
1.4 设备电气连接线序
图 3 锁体外形图 图 4 锁体接线头
锁体引线说明如下:
| 序号 |
线缆颜色 |
端口名称 |
端口说明 |
| 1 |
红色 |
电源正 |
|
| 2 |
黑色/棕色 |
电源负 |
|
| 3 |
黄色 |
开锁信号 |
高电平开锁 |
| 4 |
绿色 |
公共线 |
方舌公共线 |
| 5 |
淡蓝色 |
方舌信号 |
方舌伸出时,与方舌公共线闭合 |
| 6 |
白色 |
公共线 |
门磁公共线 |
表 1 设备电气连接线序
门禁控制单元的端子定义图如下:
以上是无线只能门锁,下图是有线只能门锁,只多了左边的两个有线通讯端子,其它相同:

二、 技术指标
2.1 工作条件
⚫
环境温度:-20℃~70℃
⚫ 环境相对湿度:0~99.9%RH,不凝露
⚫ 大气压力:70kPa~106kPa
⚫ 施工要求:需客户供一路 DC12V 电源,用于设备供电, 固定式安装要在墙壁上打孔,需得到客
户认可。
2.2 性能参数
| |
参数名称 |
参数内容 |
| 外置供电型 |
工作电压 |
DC 12V-24V +/-20% |
| |
功耗 |
<5W |
| |
工作平均电流 |
60.28mA |
| |
工作峰值电流 |
136.57mA |
| 通讯参数 |
无线 LoRa 通讯 |
支持《QGDW 12021 输变电设备物联网节点设备无线组网协议》、《输变电设备物联网传感器数据规范》
串口波特率:115200无线调制方式:LoRa
工作频率:470MHz(默认)发射功率:≤17dBm
无线数据上送频率:可配置范围为
1~30 分钟/次
通信距离:大于 50 米 |
有线通讯接口
(有线、无线二选一) |
MODBUS 协议 |
有线通讯接口
(有线、无线二选一) |
| 其他参数 |
防护等级 |
IP40 |
尺寸 |
197x91x46(mm3) |
表 2 设备性能参数